info@tdtransmet.ru
Категория: Магистральные рельсы

Железнодорожные рельсы Р-75

В наличии на складе Цена по запросу
Отправить запрос
Тип:Новый
Новый Б/У СГ
Тип рельсаР-75
Вид, назначениежелезнодорожные, магистральные
Состояниеновые, б/у
Длина12500 мм
Ширина150 мм
Высота192 мм
Ширина головки75 мм
Толщина шейки20 мм
Высота шейки104,4 мм
Высота пера подошвы13,5 мм
Мерная длина12,5 и 25 м
НЕмерная длина6-25 м
Вес метра74,41 кг
Метров в одной тонне13,44 м
Масса рельса длинной 12,5 метров930 кг
ГОСТ, ТУГОСТ 16210-77
Материалуглеродистая сталь
Единица измерениятонна

Среднее время доставки по Свердловской области: 7-10 дней

Наши логисты свяжутся с вами для уточнения деталей доставки

Прокат типа Р75 – это железнодорожные рельсы широкой колеи с шириной головки в 75 мм. Они применяются при прокладке прямых путей и стрелочных переводов, используемых для движения подвижных ж/д составов. Ориентировочный срок службы такого проката до перекладки – около 650 млн. тонн проследовавшего по ним груза (брутто). Наша компания продает рельсы Р75, отгружая продукцию со своего склада в Чите и доставляя ее автомобильным и ж/д транспортом в любую точку страны.

Рельсы Р75: параметры, характеристики, особенности

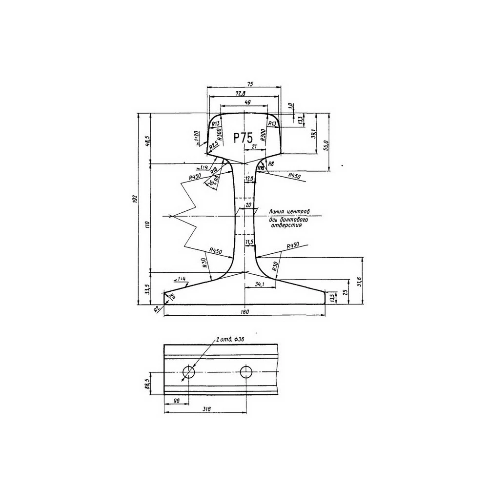
Железнодорожный рельс Р75 имеет в высоту 192 мм., ширина подошвы составляет 150 мм, толщина шейки – 20, а площадь поперечного сечения – 95,04 см2. Вес одного погонного метра металлоизделия достигает 74,41 кг., поэтому одна тонна реализуемого прокатного материала будет эквивалентна 13,44 метрам. Наша компания поставляет рельсовый металлопрокат типа Р75 мерной длины по 12,5 и 25,0 метров, что в пересчете на тонны составляет 930,13 и 1860,25 кг. соответственно. Для заявок на ж/д рельсы немерной длины мы готовы отгрузить изделия длиной от 6 до 25 м.

Данный металлопрокат продолжает производиться в соответствии с требованиями «советского» ГОСТа Р 51685-2013 с использованием углеродистой стали марки К76Ф. В ТД Трансмет вы можете купить новые железнодорожные рельсы Р75 без болтовых отверстий, а при необходимости мы выполним любую их предпродажную обработку (сверление, резку и пр.) Действующий Госстандарт устанавливает предельные отклонения рельсового проката по длине ± 20 мм., а торцы рельсов всегда обрезаются под прямым углом (перекос не может превышать 2 мм.)

ГOCT Р 51685-2013 рельс Р75

На нашем сайте вы можете скачать ГOCT Р 51685-2013 для железнодорожных рельс Р-75 — ГOCT Р 51685-2013

Пример расшифровки обозначения рельс Р75-НТ260-К76Ф-12,5-3/2 ГОСТ 51685-2013:

  • тип/марка рельса;
  • НТ категория нетермоупрочненный;
  • 260 класс прочности;
  • К76Ф марка стали;
  • мерная длина в метрах;
  • 3/2 три болтовых отверстия на обоих концах рельса.

Чертеж/схема рельса типа Р 75

чертеж железнодорожных рельс Р-75

Новый рельсовый прокат Р75 по выгодной цене в ТД Трансмет

Наша компания – один из крупнейших поставщиков элементов верхнего строения железнодорожных путей в регионе. Мы продаем рельсовый прокат в Чите по самым низким ценам в городе, так как предпочитаем придерживаться гибкой ценовой политики и находить только взаимовыгодные решения и способы сотрудничества. ТД Трансмет поставляет новый рельсовый ж/д металлопрокат, соответствующий ГОСТам, который прямо сейчас можно купить по договорной цене в любом требуемом количестве.

Таблица допускаемых отклонений

таблица допускаемых отклонений

Оплата и доставка продукции

Мы предлагаем свои услуги по доставке различных грузов для железных дорог, включая железнодорожные рельсы, шпалы и другие строительные материалы.

Мы обладаем собственным транспортом, который позволяет нам осуществлять доставку грузов быстро, качественно и в срок. Наша компания осуществляет доставку продукции по всей территории России и ближнего зарубежья.

Варианты доставки

  • Доставка автотранспортом по РФ.
  • Доставка железнодорожным составом.
  • Отправка ТК по запросу. Мы сотрудничаем со всеми сертифицированными транспортными компаниями.

Наша компания заботится о комфорте и безопасности клиентов, поэтому мы предлагаем различные виды транспорта для доставки. Не важно, нужно ли вам доставить грузы на большой расстояние или через город, мы предоставим вам наилучшее решение для вашего бизнеса.

Возможно Вас также заинтересует…

624002, Россия, Свердловская область, г. Арамиль, ул. Гарнизон, 3В